3 bedroom Semi Detached for sale in Lewes

Fitzjohns Road, Lewes

Property Ref: 1313

£665,000 OIRO

Description

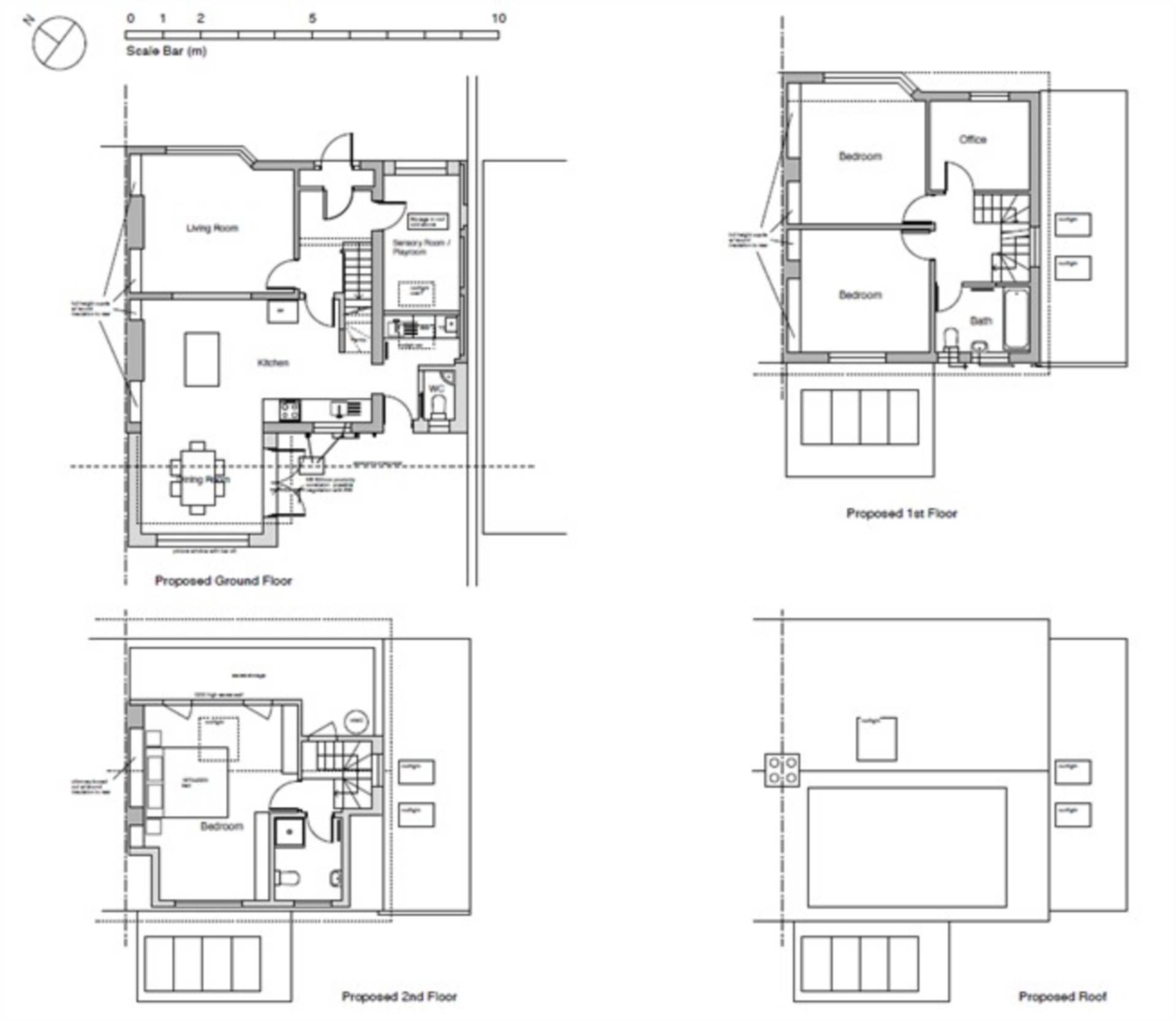
Charles Wycherley Independent Estate Agents are delighted to announce the marketing of this older style semi detached house for sale in the most popular Wallands area. This is a 3 double bedroom house on 2 storeys with a 1st floor bathroom. The ground floor has an entrance hall with 2 large reception rooms and a kitchen. There is a separate garage with utility room to the rear with access to the garden. The property has a good sized front garden with a driveway for at least 2 cars. The rear garden is a real feature being south-west facing with seating area and attractive lower section and the property has very good views of Newhaven valley and South Downs. The house is in need of some modernisation and planning permission has already been approved for a loft conversion, garage conversion and rear extension (see planning ref SDNP/24/01510/HOUS).

Fitzjohns Road is in the highly sought after Wallands area between Gundreda Road and Prince Edwards Road. The property is in an elevated position with fine views and is approximately 15 minutes walk to the historic Lewes town centre with its period attractions including independent shops, pubs, cafes and restaurants. Lewes has 3 supermarkets and the award winning Depot cinema ( immediately adjacent to Lewes mainline Railway station ) which connects to London Victoria and London Bridge (70 mins) and Brighton ( 20 mins). Fitzjohns Road hosts an annual street party and monthly play street and is close to Wallands Primary School, active community centre, 2 local shops and superb South Downs walks.


ACCOMMODATION WITH APPROXIMATE MEASUREMENTS COMPRISES:-
LOFT Potential for conversion for further upstairs double bedroom with ensuite. Heat pump hot water cylinder (installed 2022)

1st FLOOR
Landing with hatch to insulated loft space with ladder. UPVC double glazing to side to ground floor entrance hall.

BEDROOM 1 13`4 x 12`5 UPVC double glazed bay window to Fitzjohns Road to the east. Double radiator. Double wardrobe cupboard with hanging rail and cupboards over. Excellent southerly view to St Annes Crescent and South Downs.

BEDROOM 2 11`7 x 11`6 Fitted range of 2 double wardrobe cupboards with cupboards over. Further double shelved cupboard. Double UPVC glazed windows to south west with views to South Downs. Heating control panel.

BEDROOM 3 8`8 x 8`7 Upvc double glazed window to front garden. Radiator.

BATHROOM 6`8 x 5`7 Panelled bath with grips and tiled walls with glazed shower panel. Triton T80 electric shower. Wash hand basin with mixer. Electric heater. Double glazed UPVC window. Chrome heated towel rail. Separate WC with fully tiles walls and double glazed UPVC window.

GROUND FLOOR
Arched doorway to porch with electric light, key safe and quarry tiled floor.

Entrance door to ENTRANCE HALL Radiator. Wall light. Understairs cupboard.

THROUGH SITTING/DINING ROOM 24`6 full width x 14`5. Front room area 14`5 x 13`5 Feature front bay window to front garden and to the east. Gas coal effect tiled fireplace and hearth. 4 wall lights. Double radiator. Central arch. Rear DINING ROOM 11`1 x 12`4. Gas fired back boiler, shelves to each side. Wall lights. Spotlights. Sliding patio door to conservatory.

CONSERVATORY 13`5 x 7`7 Upvc double glazed windows to west and the south with UPVC door to garden. 2 wall lights. Tiled floor. Dimplex electric heater.

KITCHEN 8`8 x 8`7 Kitchen with 1 1/2 stainless steel sink unit with mixer tap. Work top to side of drainer cupboard and corner cupboard. Wall cupboard. Open Shelves. Tiled splashback and floor. Larder understairs cupboard with fitted shelves. Window over looking garden. Electric light. Electric heater. Stoves electric hob, oven and grill. Extractor hood.

UTILITY ROOM 7`2 x 6`1 UPVC rear window to south and west, UPVC double glazed window to rear garden. Space for fridge freezer. Space and plumbing for washing machine. Sliding doors to kitchen and garage.
GARAGE 17`2 x 7`9 Potential for conversion for futher ground floor room. UPVC side window. Automatic garage door. Light, power and tap.

FRONT GARDEN Brick pavier driveway for 2 cars leading to garage. Lawned front garden and raised flowers and shrub borders. Outside light. Both the driveway and front garden are level and easily useable which is a particular feature as it is unusual for this road.

REAR GARDEN 55 ft depth x 30` Newly landscaped in 2023. Paved south west facing patio. Outside awning with paved pathway between lawned area with easy climb, slab and brick steps with wooden railing and hand rail passing raised vegetable, fruit and flower beds including stepped central bed. Outside water tap. Slabbed seating area with railings and further steps to lower garden play area. Vertical wooden fencing.
SHED 9` x 4` Trimetal Titan 940 Metal Shed in olive green with flooring (installed 2023)
Greenhouse 6`x6` Aluminium Simplicity Classic by the Greenhouse People ( installed 2023)





what3words /// lushly.enchanted.comments

Notice
Please note we have not tested any apparatus, fixtures, fittings, or services. Interested parties must undertake their own investigation into the working order of these items. All measurements are approximate and photographs provided for guidance only.

Council Tax
Lewes District Council, Band D

Utilities
Electric: Unknown
Gas: Unknown
Water: Unknown
Sewerage: Unknown
Broadband: Unknown
Telephone: Unknown

Other Items
Heating: Not Specified
Garden/Outside Space: No
Parking: No
Garage: No

Key Features


  • Energy Performance Certificates (EPC)- Not Provided

Disclaimer

This is a property advertisement provided and maintained by the advertising Agent and does not constitute property particulars. We require advertisers in good faith to act with best practice and provide our users with accurate information. WonderProperty can only publish property advertisements and property data in good faith and have not verified any claims or statements or inspected any of the properties, locations or opportunities promoted. WonderProperty does not own or control and is not responsible for the properties, opportunities, website content, products or services provided or promoted by third parties and makes no warranties or representations as to the accuracy, completeness, legality, performance or suitability of any of the foregoing. WonderProperty therefore accept no liability arising from any reliance made by any reader or person to whom this information is made available to. You must perform your own research and seek independent professional advice before making any decision to purchase or invest in property.

MARKETED BY
More Details About Charles Wycherley Estate Agents